Hyppää sisältöön

Porkkalankatu 7, Helsinki (Ruoholahti)

Porkkalankatu 7, 00180 Helsinki

Tilan tyyppi

Toimistotila 132.5 m²

Vuokra

Sopimuksen mukaan

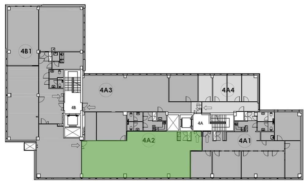
Vuokrattavana 4. kerroksen 132,5 m² toimistotila.

Kiinteistö sijaitsee loistavalla sijainnilla hyvien kulkuyhteyksien varrella Ruoholahden liikekeskuksessa. Kaikki Ruoholahden palvelut ovat kävelyetäisyydellä. Ruoholahden metroasema 500 m päässä ja kiinteistön läheltä kulkevat raitiovaunulinjat. Runsaasti pysäköintitilaa parkkihallissa.

Tilan yksityiskohdat

Osoite
Porkkalankatu 7, 00180 Helsinki
Tilan tyyppi
Toimistotila
Pinta-ala (m²)
132.5 m²
Energiatodistus
Laki ei vaadi energiatodistusta
Vuokra
Sopimuksen mukaan
Tilan numero
21403132

Kysy lisää kohteesta

Langhoff Teija

Langhoff Teija

Vuokrauspäällikkö

050 305 7670

INNA Toimitilavuokraus

Valimotie 9-11, 00380 HELSINKI